Flat for Sale in Lodha MIRABELLE next to Manyata Tech Park – Bangalore
Flat for Sale in Lodha MIRABELLE next to Manyata Tech…
₹1.6 Cr Onward
Avalahalli Road, Horamavu Agara Road, Bileshivale, Bengaluru – 562149, Karnataka
Under Construction
3 BHK ₹4.1 Cr onwards








🏡 Luxury Living Redefined in North Bangalore
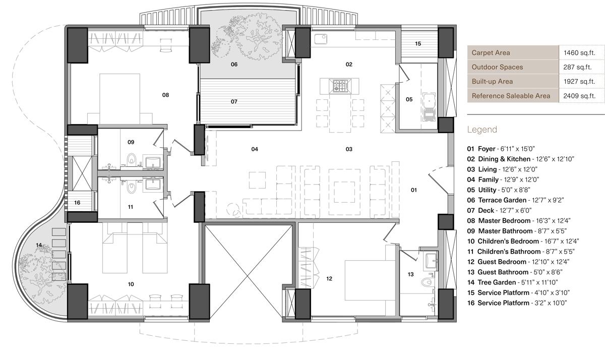
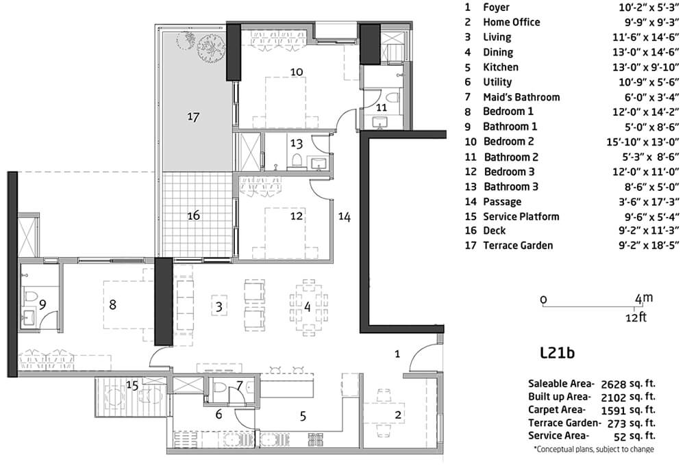
Tower 5 at Total Environment In That Quiet Earth offers premium 3 BHK L21 luxury apartments along with exclusive villas, thoughtfully crafted with the brand’s signature design philosophy. Spread amidst lush green landscapes, the project blends contemporary architecture with natural materials, private gardens, large decks, and expansive living spaces. The low-density layout ensures privacy, abundant ventilation, and abundant natural light, creating a serene and elite residential experience.
📍 Prime Location – Hennur Road Advantage
Strategically located on Hennur Road, North Bangalore, the project enjoys excellent connectivity to Outer Ring Road (ORR), Manyata Tech Park, and Kempegowda International Airport. It is positioned at the crux of fast-growing residential and commercial hubs, ensuring strong appreciation potential. Close proximity to reputed schools, hospitals, malls, and upcoming infrastructure developments makes it ideal for IT professionals and families seeking convenience and long-term value.
🏢 World-Class Amenities & Secure Community
Residents enjoy a fully equipped clubhouse, landscaped gardens, gymnasium, swimming pool, indoor recreation rooms, outdoor sports courts, children’s play area, and a spacious party hall. The community is meticulously planned with state-of-the-art 24/7 security systems, ensuring safety and peace of mind. With premium specifications, green surroundings, and a trusted developer legacy, Tower 5 stands as a landmark luxury address in North Bangalore. ✨
🏢 Project Configuration
| 📌 Category | 📊 Details |
| 📍 Project Location | Bileshevale, Hennur Road, North Bangalore |
| 🌿 Total Land Area | 14.5 Acres |
| 🏢 Total Units | 560 Units |
| 🏗️ Towers & Structure | 5 Towers – 2 Basements + Ground + 36 Floors (2B + G + 36) |
| 🏡 Unit Variants | Ultra Luxury 2, 3 & 4 BHK Apartments + Villas |
| ⏳ Possession – Tower 5 | June 2026 Onwards |
| 🗓️ Possession – Phase 1 | December 2022 Onwards |
💰 Price & Size Details
| 🧾 Unit Type | 📐 Size (Sq.ft) | 💲 Approx. Price |
| 3 BHK (L21) – Tower 5 | 2628 Sq.ft | ₹ 4.08 Crore Onwards |
🏡 Amenities
| Amenities | |||
| 💪 HEALTH & WELLNESS | 🏊 SPORTS & ACTIVE LIVING | ||
| 💪 | Modern Gymnasium | 🏊 | Swimming Pool |
| 🧘 | Yoga & Meditation Deck | 🏸 | Badminton Court |
| 🚶 | Walking Trails | 🎾 | Multi-Sport Court |
| 🚴 | Dedicated Cycling Track | 🏃 | Outdoor Activity Areas |
| 🎯 INDOOR RECREATION | 👨👩👧 FAMILY & KIDS ZONES | ||
| 🎯 | Indoor Games Room | 📍 | Children’s Play Area |
| 🎱 | Billiards / Pool Room | 🌈 | Kids Activity Spaces |
| ♟️ | Board Games Corner | 🌳 | Safe Open Play Greens |
| 🎮 | Recreation Lounge | 🎉 | Educational/Quiet Play |
| 🌊 NATURE & ECO DESIGN | 🛡️ SAFETY & INFRASTRUCTURE | ||
| 🌊 | Lake-Inspired Landscaping | 🛡️ 24×7 | Security & Surveillance |
| 🌳 | Large Open Green Spaces | 🚪 | Grand Gated Entrance |
| 🌧️ | Rainwater Harvesting | 💡 | LED Street Lighting |
| ♻️ | Eco-Sensitive Infrastructure | ⚡ | Underground Utilities |
📌 Project Address
Avalahalli Road, Horamavu Agara Road, Bileshivale, Bengaluru – 562149, Karnataka
🏢 Total Environment
🌿 Founded in 1996, Total Environment is a Bangalore-based luxury developer known for design-driven, nature-integrated homes featuring exposed brick architecture, terrace gardens, natural materials, and customizable interiors. The brand emphasizes sustainability, craftsmanship, and premium community living.
🏙️ Landmark Bangalore projects include Windmills of Your Mind, Pursuit of a Radical Rhapsody, After the Rain, and In That Quiet Earth—all known for low-density layouts, greenery, and luxury amenities.
🚀 Ongoing and upcoming expansions across Whitefield, Hennur Road, and Yelahanka focus on ultra-luxury apartments and villas with strong appreciation potential, premium specifications, and signature architectural identity. ✨
Choose our consultancy for a smart, secure, and stress-free property buying experience — at zero cost. We don’t just show projects; we analyze your requirements, curate the best options, and provide honest, research-backed guidance. From site visits and side-by-side comparisons to negotiating the best price, we manage every step professionally. Our experts also assist with home loans, documentation, registration, and handover coordination. You get verified options, transparent communication, and priority support — all without sales pressure. Better deals, better clarity, and complete confidence — that’s our promise.
Flat for Sale in Lodha MIRABELLE next to Manyata Tech…
₹1.6 Cr Onward
3 BHK Flat for Sale in Purva Atmosphere-Thanisandra Bangalore TYPE…
₹2.7 CR- Onwards