3 BHK Flat For Resale In Brigade Utopia-Varthur
3 BHK Flat For Resale In Brigade Utopia-Varthur Bangalore TYPE…
₹3.6 Cr
Brigade Insignia (u/c), Akash Ward, Bengaluru North City Corporation, Bengaluru, Yelahanka taluku, Bengaluru Urban, Karnataka, 560064, India
Luxury, trending properties
3.5 BHK ₹3.0 Cr onwards







🏡 Brigade Insignia is a landmark luxury residential development by the renowned Brigade Group, locatbed in Yelahanka right off Bellary Road (NH44/Airport Road) in North Bangalore. The project offers spacious and low-density 3, 4 BHK, and exclusive 5 BHK penthouse apartments designed with premium specifications, expansive balconies, and abundant natural light. With over 60% open spaces, beautifully landscaped surroundings, and contemporary architecture, the enclave creates a serene and elite living environment.
📍 Strategically positioned in Yelahanka, Brigade Insignia enjoys seamless connectivity to Kogilu Cross, Jakkur, Thanisandra Road, Bagalur, and Doddaballapura Road. Kempegowda International Airport is just about 20 minutes away, making it ideal for frequent travelers. The project is surrounded by well-established and upcoming residential communities, reputed schools, healthcare centers, and business hubs, ensuring both convenience and strong future growth potential.
🌿 Residents can indulge in a host of world-class amenities including a fully equipped clubhouse, landscaped gardens, gymnasium, swimming pool, recreation rooms, outdoor sports courts, children’s play area, party hall, pet park, and state-of-the-art 24/7 security. Designed to deliver comfort, privacy, and sophistication, Brigade Insignia promises a refined lifestyle experience in one of North Bangalore’s most sought-after neighborhoods.
🏢 Project Configuration
| 🔖 Category | 📌 Details |
| 📍 Location | Yelahanka, Off Bellary Road |
| 🌍 Total Land Area | 6 Acres |
| 🏘️ Total Units | 379 Units |
| 🏢 Towers | 6 Towers |
| 🏗️ Structure | 2 Basements + Stilt + 15 Floors (2B + S + 15) |
| 🛏️ Unit Variants | 3 BHK, 4 BHK, 5 BHK Penthouses |
| ⏳ Possession | 2029 Onwards |
💰 Brigade Group – Brigade Insignia Price
| 🏷️ Unit Type | 📐 Size (Sq. Ft.) | 💵 Approx Price |
| 🛏️ 3 BHK + Study | 2145 | ₹ 2.99 Crore – ₹ 3.30 Crore Onwards |
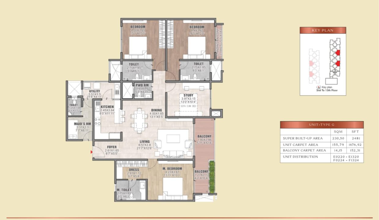
| 🛏️ 3 BHK + Maid’s + Study | 2478 – 2481 | ₹ 3.60 Crore – ₹ 3.90 Crore Onwards |
| 🛏️ 4 BHK + Maid’s + Study | 3066 – 3114 | ₹ 4.30 Crore – ₹ 4.60 Crore Onwards |
| 🏡 5 BHK Duplex Penthouse | 4204 – 5947 | ₹ 6 Crore – ₹ 9 Crore Onwards |
🏡 Amenities
| Amenities | |||
| 💪 HEALTH & WELLNESS | 🏊 SPORTS & ACTIVE LIVING | ||
| 💪 | Modern Gymnasium | 🏊 | Swimming Pool |
| 🧘 | Yoga & Meditation Deck | 🏸 | Badminton Court |
| 🚶 | Walking Trails | 🎾 | Multi-Sport Court |
| 🚴 | Dedicated Cycling Track | 🏃 | Outdoor Activity Areas |
| 🎯 INDOOR RECREATION | 👨👩👧 FAMILY & KIDS ZONES | ||
| 🎯 | Indoor Games Room | 📍 | Children’s Play Area |
| 🎱 | Billiards / Pool Room | 🌈 | Kids Activity Spaces |
| ♟️ | Board Games Corner | 🌳 | Safe Open Play Greens |
| 🎮 | Recreation Lounge | 🎉 | Educational/Quiet Play |
| 🌊 NATURE & ECO DESIGN | 🛡️ SAFETY & INFRASTRUCTURE | ||
| 🌊 | Lake-Inspired Landscaping | 🛡️ 24×7 | Security & Surveillance |
| 🌳 | Large Open Green Spaces | 🚪 | Grand Gated Entrance |
| 🌧️ | Rainwater Harvesting | 💡 | LED Street Lighting |
| ♻️ | Eco-Sensitive Infrastructure | ⚡ | Underground Utilities |
📌 Address:
R T Nagar, Maruthi Nagar, Yelahanka,
Bengaluru, Karnataka – 560064
🗺️ Landmark Connectivity:
Located off Bellary Road in North Bengaluru with excellent access to airport corridor and key business hubs.
| 🎓 Schools | 🏥 Hospitals | 💼 Tech Parks | 🛍️ Entertainment |
| 🏫 Canadian International School – 2.1 km | 🏥 Aster CMI Hospital – 7.0 km | 🏢 Northgate Office Park – 700 m | 🛒 Phoenix Mall of Asia – 5.2 km |
| 🏫 Mallya Aditi International School – 4.0 km | 🏥 Rainbow Children’s Hospital – 7.5 km | 🏢 Sattva Horizon – 1.6 km | 🛒 Esteem Mall – 8.9 km |
| 🏫 Vidyashilp Academy – 5.0 km | 🏥 Manipal Hospital Hebbal – 9.1 km | 🏢 RMZ Galleria Office Block – 3.6 km | 🛒 Bhartiya Mall of Bengaluru – 9.3 km |
| 🏫 Nagarjuna Vidyaniketan – 7.8 km | 🏥 Cloudnine Hospital – 16.8 km | 🏢 Prestige Tech Cloud – 10.9 km | — |
🏗️ About Developer.
Brigade Group is one of India’s leading real estate developers with over three decades of experience.
Founded in 1986 and headquartered in Bengaluru, the company has built a strong reputation for quality and innovation.
It develops residential, commercial, retail, hospitality, and mixed-use projects across South India.
Brigade is known for premium construction standards, timely delivery, and lifestyle-focused communities.
In Bengaluru, Brigade has delivered landmark developments that have shaped the city’s skyline.
Brigade Gateway is one of its most iconic projects, integrating homes, offices, hotel, and Orion Mall.
Premium residential projects like Brigade Exotica and Brigade Buena Vista are also well recognized.
These developments highlight Brigade’s focus on luxury, connectivity, and community living.
The group continues expanding with several ongoing and upcoming projects in Bengaluru.
Notable new developments include Brigade Lakecrest and Brigade Insignia in North Bengaluru.
It is also launching premium apartments and plotted developments across key growth corridors.
With strong brand value and strategic locations, Brigade remains a preferred choice among homebuyers and investors.
Choose our consultancy for a smart, secure, and stress-free property buying experience — at zero cost. We don’t just show projects; we analyze your requirements, curate the best options, and provide honest, research-backed guidance. From site visits and side-by-side comparisons to negotiating the best price, we manage every step professionally. Our experts also assist with home loans, documentation, registration, and handover coordination. You get verified options, transparent communication, and priority support — all without sales pressure. Better deals, better clarity, and complete confidence — that’s our promise.
3 BHK Flat For Resale In Brigade Utopia-Varthur Bangalore TYPE…
₹3.6 Cr
4 BHK Flat For Sale In HBR Layout-AH Jalsa Bangalore…
₹2.5 cr